Constructeur de maisons individuelles

Plan de maison Gomawe

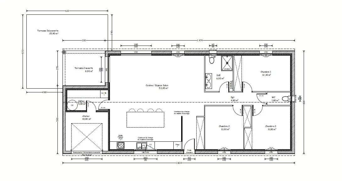
105.3 m²
7 pièces
3 chambres
1 salle(s) de bain

Description

Spécialiste de la construction de maisons en DordogneCorrèze & Charente, Maisons Aliénor vous présente son modèle de maison d’une superficie de 105 m², de plain-pied, généreuse, contemporaine et lumineuse, largement ouverte sur l’extérieur.

Découvrez le modèle de maison GOMAWE, une maison conçue pour ceux qui recherchent à la fois moderne et confort dans un espace de vie optimal de 53.45 m², pour vous offrir une belle convivialité en famille ou entre amis. Ce modèle incarne l’équilibre parfait entre fonctionnalité et esthétique.

Ce modèle de maison plain-pied saura vous charmer ! Cette maison moderne généreusecontemporaine et lumineuse, largement ouverte sur l’extérieur se compose de deux espaces bien séparés permettant de distinguer les pièces de jour et celles de nuit.

Photos du modèle

Le modèle de maison m'intéresse

En soumettant ce formulaire, vous acceptez que vos données soient utilisées pour traiter votre demande. Pour en savoir plus sur la gestion de vos données personnelles et pour exercer vos droits, consultez notre Politique de confidentialité.

Photos du modèle

Découvrez nos autres plans de maison