Constructeur de maisons individuelles

Plan de maison Haikili

90.5 m²
8 pièces
3 chambres
1 salle(s) de bain

Description

Découvrez le modèle Haikili

Plan maison Haikili à vendre :

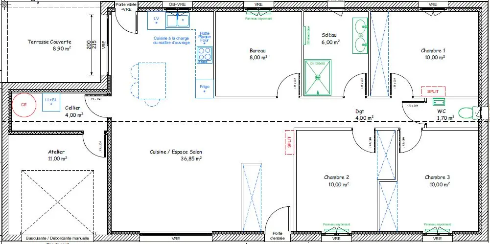
Spécialiste de la construction de maisons en Dordogne, Corrèze & Charente, Maisons Aliénor vous présente son modèle de maison d’une superficie de 90.55 m², de plain-pied, généreuse, contemporaine et lumineuse, largement ouverte sur l’extérieur.

Découvrez le modèle de maison HAIKILI, une maison conçue pour ceux qui recherchent à la fois moderne et confort dans un espace de vie optimal de 36.85 m², pour vous offrir une belle convivialité en famille ou entre amis. Ce modèle incarne l’équilibre parfait entre fonctionnalité et esthétique.

Ce modèle de maison plain-pied saura vous charmer ! Cette maison moderne généreuse, contemporaine et lumineuse, largement ouverte sur l’extérieur se compose de deux espaces bien séparés permettant de distinguer les pièces de jour et celles de nuit.

Derrière une façade élégante on découvre :

🏠 Une maison ergonomique et confortable de 90.55 m²,

🍴 Une cuisine ouverte sur un espace de vie particulièrement lumineux et spacieux,

🛋 une grande pièce à vivre de 36.85 m²,

🛏 L’espace nuit s’articule autour de trois chambres proposant des espaces de rangements faciles à aménager,

🛁 Une agréable salle d’eau,

🚽 Un toilette séparé.

Personnalisation et Durabilité au Cœur de Votre Maison

Le modèle de maison HAIKILI se distingue par ses toitures variées (35%, 70%, 120%), permettant une personnalisation esthétique et fonctionnelle, adaptée à tous les goûts, du traditionnel au contemporain. Ces options améliorent l’efficacité énergétique et la durabilité, contribuant à une gestion thermique optimale et à une réduction de l’empreinte écologique.

Choisir HAIKILI, c’est opter pour un équilibre entre modernité et confort, dans une maison écologique, construite avec des matériaux durables. Elle reflète votre personnalité tout en offrant un cadre de vie agréable.

Ce modèle est un exemple pour vous inspirer. Nous nous engageons à créer la maison qui vous ressemble, en respectant votre budget et vos préférences, qu’elles soient traditionnelles ou contemporaines.

 

Nos modèles de maisons sont 100% personnalisables !

Pour de plus amples informations,
veuillez nous contacter 05 33 09 12 33 !

 

La maison sera équipée d’une pompe à chaleur installée par notre partenaire Aliénor Génie Climatique qui permettra tout aussi bien de chauffer l’espace que de le rafraîchir via un système complètement réversible. A vous la fraicheur durant les périodes de chaleurs et la chaleur durant les périodes hivernales.

Trouvons maintenant ensemble le terrain qui correspondra à tous vos critères. Grâce à nos commerciaux Maisons Aliénor, votre projet de rêve deviendra réalité ! Répondre à vos attentes est au cœur de notre mission de constructeur de maisons individuelles.

Photos du modèle

Le modèle de maison m'intéresse

En soumettant ce formulaire, vous acceptez que vos données soient utilisées pour traiter votre demande. Pour en savoir plus sur la gestion de vos données personnelles et pour exercer vos droits, consultez notre Politique de confidentialité.

Photos du modèle

Découvrez nos autres plans de maison