Constructeur de maisons individuelles

Plan de maison Haumea

100 m²
7 pièces
4 chambres
1 salle(s) de bain

Description

Découvrez le modèle Haumea

Plan maison Haumea à vendre :

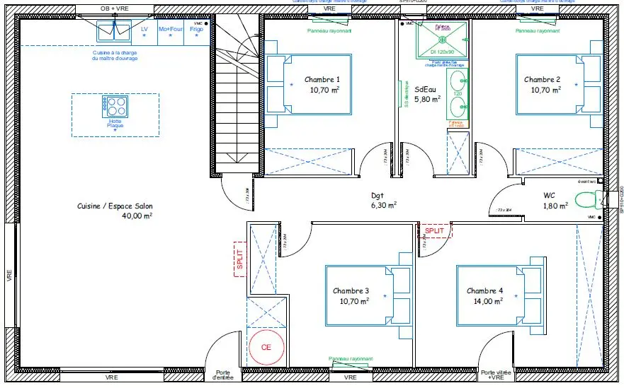
Maisons Aliénor, spécialiste de la construction en Dordogne, Corrèze et Charente, vous propose son modèle de maison Haumea. D’une superficie de 100 m², cette maison de plain-pied est moderne, généreuse et lumineuse, largement ouverte sur l’extérieur.
Le modèle de maison Haumea est conçu pour ceux qui recherchent à la fois modernité et confort. L’espace de vie de 40 m² offre une belle convivialité en famille ou entre amis.
Ce modèle incarne l’équilibre parfait entre fonctionnalité et esthétique. Cette maison plain-pied saura vous séduire. Moderne, généreuse et lumineuse, elle est ouverte sur l’extérieur. Elle se compose de deux espaces bien séparés : un pour les pièces de jour et un autre pour les pièces de nuit.

Derrière une façade élégante on découvre :

🏠 Une maison ergonomique et confortable de 100 m²,

🍴 Une cuisine ouverte sur un espace de vie particulièrement lumineux et spacieux,

🛋 une grande pièce à vivre de 40 m²,

🛏 L’espace nuit s’articule autour de quatre chambres proposant des espaces de rangements faciles à aménager,

🛁 Une agréable salle d’eau,

🚽 Un toilette séparé.

La singularité du modèle de maison HAUMEA réside non seulement dans sa proposition de toitures variées, mais aussi dans les différentes inclinaisons disponibles : 35%, 70% et 120%. Cette diversité permet à chaque futur propriétaire de personnaliser sa maison selon ses goûts esthétiques et ses exigences fonctionnelles, qu’il soit à la recherche d’une touche traditionnelle ou d’un design plus contemporain. De plus, les différentes options de toiture ne servent pas uniquement l’esthétique ; elles jouent également un rôle crucial dans l’efficacité énergétique et la durabilité de la maison. En effet, elles contribuent à une gestion thermique optimale et à une réduction de l’empreinte écologique.

Opter pour le modèle Haumea, c’est avant tout choisir une maison moderne et agréable à vivre. Par ailleurs, elle est construite avec des matériaux durables et écologiques, ce qui témoigne de notre engagement envers la construction responsable. Ainsi, vous pourrez profiter d’un cadre de vie sain et confortable. Ce modèle intemporel reflète non seulement votre personnalité, mais vous offre également un confort quotidien inégalé.

Ce modèle de maison est avant tout un exemple, conçu pour vous inspirer et vous montrer la qualité du travail que nous réalisons. Cependant, nous mettons un point d’honneur à créer pour vous le plan de la maison qui VOUS convient, qui VOUS ressemble, dans le budget que vous nous annoncez aussi bien dans le traditionnel que dans le contemporain !

 

Nos modèles de maisons sont 100% personnalisables !

Pour de plus amples informations,
veuillez nous contacter 05 33 09 12 33 !

 

La maison sera équipée d’une pompe à chaleur installée par notre partenaire Aliénor Génie Climatique qui permettra tout aussi bien de chauffer l’espace que de le rafraîchir via un système complètement réversible. A vous la fraicheur durant les périodes de chaleurs et la chaleur durant les périodes hivernales.

Trouvons maintenant ensemble le terrain qui correspondra à tous vos critères. Avec l’aide de nos commerciaux Maisons Aliénor, votre projet de rêve deviendra réalité ! Notre objectif est de répondre à vos attentes, car cela est au cœur de notre mission de constructeur de maisons individuelles.

N’attendez plus et contactez-nous sans plus tarder !

N’oubliez pas une belle aventure, commence toujours par un petit coup de fil 😉🌿🏡

Photos du modèle

Le modèle de maison m'intéresse

En soumettant ce formulaire, vous acceptez que vos données soient utilisées pour traiter votre demande. Pour en savoir plus sur la gestion de vos données personnelles et pour exercer vos droits, consultez notre Politique de confidentialité.

Photos du modèle

Découvrez nos autres plans de maison