Constructeur de maisons individuelles

Plan de maison Nawao

96.6 m²
7 pièces
3 chambres
1 salle(s) de bain

Description

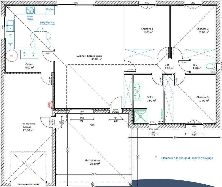
Plan maison Nawao à vendre :

Spécialiste de la construction de maisons en Dordogne, Corrèze & Charente, Maisons Aliénor vous présente son modèle de maison d’une superficie de 96.60 m², de plain-pied, généreuse, contemporaine et lumineuse, largement ouverte sur l’extérieur.

Découvrez le modèle de maison NAWAO, une maison conçue pour ceux qui recherchent à la fois moderne et confort dans un espace de vie optimal de 45 m², pour vous offrir une belle convivialité en famille ou entre amis. Ce modèle incarne l’équilibre parfait entre fonctionnalité et esthétique.

Ce modèle de maison plain-pied saura vous charmer ! Cette maison moderne généreuse, contemporaine et lumineuse, largement ouverte sur l’extérieur se compose de deux espaces bien séparés permettant de distinguer les pièces de jour et celles de nuit.

Derrière une façade élégante on découvre :

🏠 Une maison ergonomique et confortable de 96.60 m²,

🍴 Une cuisine ouverte sur un espace de vie particulièrement lumineux et spacieux,

🛋 une grande pièce à vivre de 45 m²,

🛏 L’espace nuit s’articule autour de trois chambres proposant des espaces de rangements faciles à aménager,

🛁 Une agréable salle d’eau,

🚽 Un toilette séparé.

La singularité du modèle de maison NAWAO réside également dans sa proposition de toitures variées, avec des inclinaisons de 35%, 70% et 120%. Cette diversité permet à chaque futur propriétaire de personnaliser sa maison selon ses goûts esthétiques et ses exigences fonctionnelles, qu’ils recherchent une touche traditionnelle ou un design plus contemporain. Les différentes options de toiture ne servent pas uniquement l’esthétique ; elles jouent un rôle crucial dans l’efficacité énergétique et la durabilité de la maison, contribuant ainsi à une meilleure gestion thermique et à une réduction de l’empreinte écologique.

Opter pour le modèle de maison NAWAO, c’est choisir une demeure qui incarne un équilibre parfait entre modernité et douceur, offrant un cadre de vie sain et agréable. Construite avec des matériaux durables et écologiques, le modèle de maison NAWAO témoigne de notre engagement envers la construction responsable et le bien-être de ses occupants.

Laissez-vous séduire par le charme intemporel du modèle de maison NAWAO, une invitation à vivre dans une maison qui reflète votre personnalité tout en vous offrant un confort quotidien inégalé. Explorez les possibilités infinies de personnalisation et faites le premier pas vers la maison de vos rêves.

Ce modèle de maison est à titre d’exemple afin de vous donner des idées et de vous montrer le travail effectué. Toutefois, nous mettons un point d’honneur à créer pour vous le plan de la maison qui VOUS convient, qui VOUS ressemble, dans le budget que vous nous annoncez aussi bien dans le traditionnel que dans le contemporain !

Nos modèles de maisons sont 100% personnalisables !

Vous souhaitez plus d’informations sur notre réalisation NAWAO ?

La maison sera équipée d’une pompe à chaleur installée par notre partenaire Aliénor Génie Climatique qui permettra tout aussi bien de chauffer l’espace que de le rafraîchir via un système complètement réversible. A vous la fraicheur durant les périodes de chaleurs et la chaleur durant les périodes hivernales.

Trouvons maintenant ensemble le terrain qui correspondra à tous vos critères. Grâce à nos commerciaux Maisons Aliénor, votre projet de rêve deviendra réalité ! Répondre à vos attentes est au cœur de notre mission de constructeur de maisons individuelles.

N’attendez plus et contactez-nous sans plus tarder !

N’oubliez pas une belle aventure, commence toujours par un petit coup de fil 😉🌿🏡

Photos du modèle

Le modèle de maison m'intéresse

En soumettant ce formulaire, vous acceptez que vos données soient utilisées pour traiter votre demande. Pour en savoir plus sur la gestion de vos données personnelles et pour exercer vos droits, consultez notre Politique de confidentialité.

Photos du modèle

Découvrez nos autres plans de maison